Neubau eines Mehrfamilienwohnhauses in Witten
Herdecker Straße
Durch die sehr hohe Energieeffizienz des Gebäudes durch modernste Heizungstechnik (Wärmeluftpumpe mit Fußbodenheizung, gasunabhängig), hochwertige Fenster und effizientestem Dämmmaterial ist das Gebäude bestens für eine energiesparende Zukunft gerüstet.
Die Wohnungen sind mit hochwertigen Mietküchen, weiß und grifflos, ausgestattet (siehe Bild unten). Die Küche beinhaltet Kühlschrank, Induktionskochfeld, Dunstabzugshaube, Backofen, Spülmaschine.
Ein kleiner Gemeinschaftsgarten steht den Mietern zur Verfügung und kann ebenfalls über den Aufzug erreicht werden.
Die Böden sind mit modernen Fliesen (Badezimmer) und hochwertigem Vinyl in den anderen Räumen belegt. Alle Wände sind glatt verputzt und weiß gestrichen. Ein Abstellraum in der Wohnung sowie ein zusätzlicher Kellerraum ist jeder Wohnung zugeordnet.
Im Erdgeschoss befindet sich eine große Waschküche mit genügend Platz für Waschmaschine und Trockner sowie ein Kellerraum für Fahrräder und Kinderwagen etc.
Beispielrechnung für eine 71 m2 Wohnung*
Kaltmiete 71m2 * 11,75 Euro/m2 = 834,25 Euro
Nebenkosten 71m2 * 2,50 Euro/m2 = 177,50 Euro (werden tagesgenau Ende des Jahres abgerechnet)
Küche 85,00 Euro (Für die ersten 10 Jahre nach Einbau)
Stellplatz 45,00 Euro
Monatliche Warmmiete 1.141,75 Euro
Beispielrechnung für eine 58 m2 Wohnung*
Kaltmiete 58m2 * 11,75 Euro/m2 = 681,50 Euro
Nebenkosten 58m2 * 2,50 Euro/m2 = 145,00 Euro (werden tagesgenau Ende des Jahres abgerechnet)
Küche 85,00 Euro (Für die ersten 10 Jahre nach Einbau)
Stellplatz 45,00 Euro
Monatliche Warmmiete 956,50 Euro
Melden Sie sich bei Interesse schnellstmöglich unter robert.berker@berkerimmobilien um einen Besichtigungstermin ab Anfang August zu vereinbaren.
*Durch die sehr stark gestiegenen Baukosten müssen wir eine entsprechende Kaltmiete ansetzen. Wir garantieren aber, dass in absehbarer Zeit keine Mietsteigerung erfolgt. Darüber hinaus können die Nebenkosten durch die energieeffiziente Bauweise niedrig gehalten werden. Für Reparaturen und Instandhaltung an den Küchen kommt der Vermieter auf.

8 Wohneinheiten // KFW 55 Standard // Nachhaltig // Balkone // Stilvolles Design // Gemeinschaftsgarten inkl. Spielplatz // Aufzug // Barrierearm // Carports // Wohnungen zwischen 47 & 74 m2 // Perfekte Lage für Familien & Singles // Blick ins Grüne //
Weitere Bilder folgen in Kürze
Architekt: Planbar Architekten, Witten
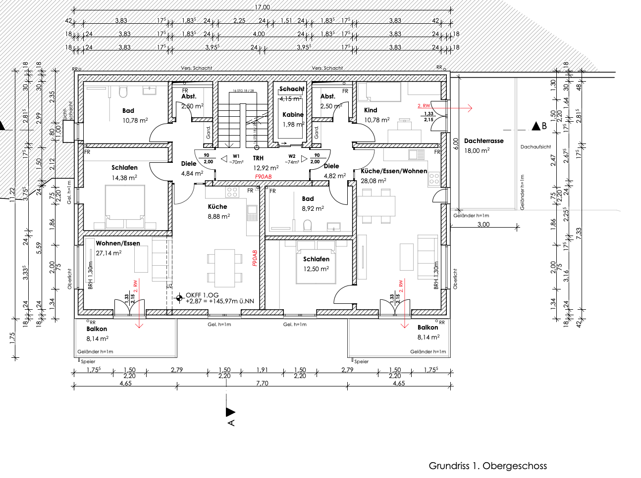
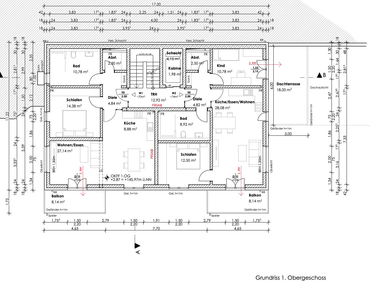
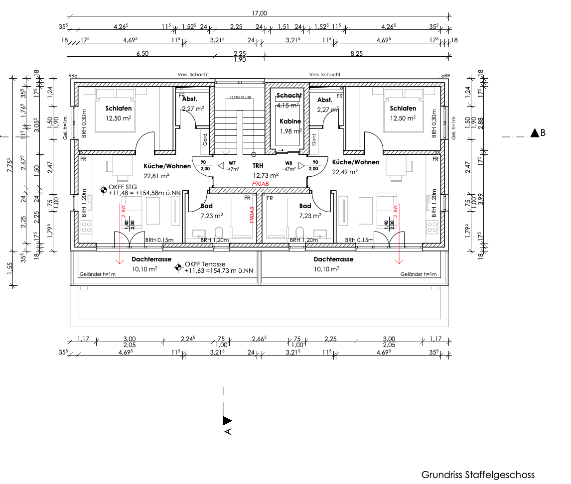
Grundrisse
Energieeffizient
Modern
2021
Wir werden auf dieser Seite regelmäßig Neuigkeiten zur Planung und zum Stand der Baumaßnahmen berichten.
Bei Interesse an einer Anmietung einer Wohnung, schicken Sie uns gerne eine Anfrage über das Kontaktformular oder per Email. Wir rufen Sie schnellstmöglich zurück.
Flyer als PDF-Datei herunterladen





